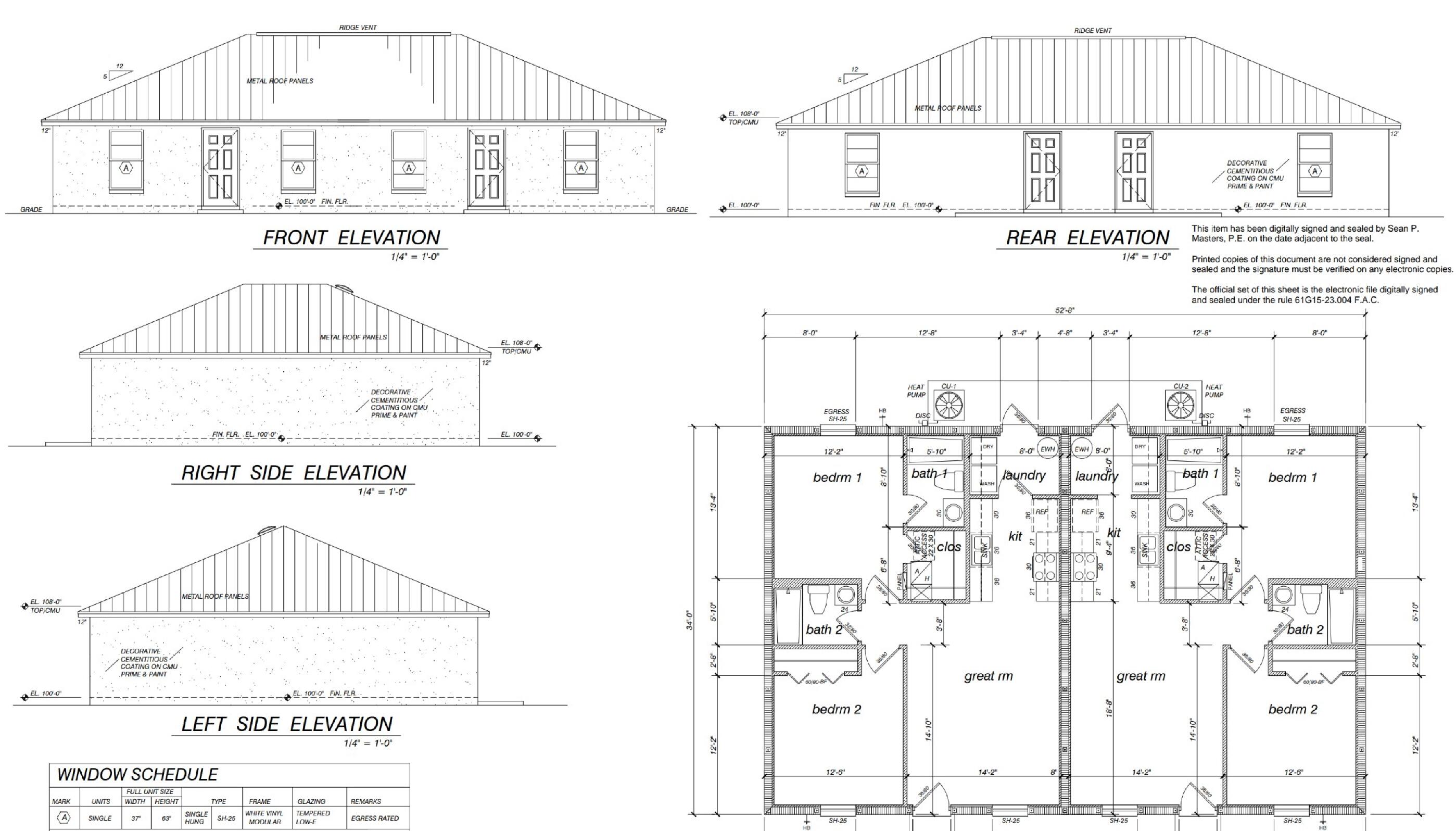
Multi-Family Dwellings

Our multi-family constructions projects are thoughtfully designed to balance durability, efficiency, and modern living. We focus on high-quality materials, smart layouts, and code-compliant construction to create comfortable homes that meet the needs of residents while maximizing long-term value for owners and investors. From small-scale developments to larger residential communities, we build multi-family dwellings that are functional, attractive, and build to last.


Loading